Nie czekaj, napisz wiadomość!
Domy szeregowe w Miękini

Dlaczego Miękinia?
- tylko 25 km od wrocławskiego Rynku,
- świetna komunikacja kolejowa – w 23 minuty do centrum Wrocławia,
- bliskość głównych tras komunikacyjnych (droga nr 94),
- położenie tuż przy granicy z Wrocławiem.

Dom pod lasem, z infrastrukturą pod ręką

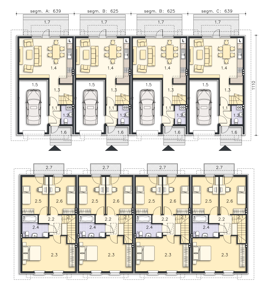
Projekt i ceny domów
SEGMENT SKRAJNY:
- powierzchnia użytkowa: 102 m²,
- garaż: 18,48 m²,
- łączna powierzchnia segmentu skrajnego: 155 m² (dla segmentu skrajnego) + ogród około 262 m².
Cena: 789 990 zł brutto
Cena za m²: 7 745 zł m²
SEGMENT ŚRODKOWY:
- powierzchnia użytkowa: 102 m²,
- garaż: 18,48 m²,
- łączna powierzchnia segmentu środkowego: 152 m² + ogród około 93 m²
Cena: 750.000 zł brutto
Cena za m²: 7 353 zł brutto

Rozkład pomieszczeń
taras, toaleta,
- poddasze: dwa pokoje dziecięce, duża łazienka, sypialnia rodziców,
- w bryle budynku: jednostanowiskowy garaż.
Styl i estetyka:
Elegancka, nowoczesna elewacja podkreślona elementami drewnianymi i metalowymi barierkami na balkonach. Funkcjonalny układ wnętrz zapewnia komfort całej rodzinie, a duże przeszklenia w salonie sprawiają, że dom jest pełen światła i otwarty na ogród.

.jpg)
Happy Home - Twój dom pełen radości
Happy Home sp. z o.o. to rodzinna firma, której misją jest tworzenie wyjątkowych miejsc do życia. Wiemy, że dom to coś więcej niż cztery ściany – to przestrzeń, w której rodzą się wspomnienia, budują się relacje i dojrzewa poczucie bezpieczeństwa.
Wybierz wariant wykończenia domu

Możesz zdecydować się na stan deweloperski i samodzielnie urządzić dom krok po kroku albo powierzyć nam pełną realizację i odebrać gotowe, pięknie wykończone wnętrze.

Stan deweloperski
Dom w stanie deweloperskim obejmuje:
- balustrady
- tynki wewnętrzne,
- instalację ogrzewania podłogowego w całym domu,
- pompę ciepła jako ekologiczne źródło ciepła,
- ocieplenie poddasza,
- schody z prefabrykatu,
- stolarkę okienną z elektrycznymi roletami góra dół,
- drzwi wejściowe,
- elektryczną bramę garażową,
- parapety wewnętrzne – konglomerat i zewnętrzne -blaszane
- podbitka dachowa, rynny,
- dojazd i miejsca parkingowe,
- ogrodzenie
To solidna baza do samodzielnego wykończenia domu według własnych upodobań.

Wykończenie pod klucz
Dla tych, którzy chcą od razu wprowadzić się do gotowego domu, przygotowaliśmy opcję „pod klucz”.
- nie musisz szukać ani pilnować ekip wykończeniowych,
- nasi specjaliści zajmą się kompleksowym przygotowaniem wnętrz,
- możesz wybrać projekt przygotowany przez nasz zespół lub zrealizować własną wizję. Dzięki temu oszczędzasz czas i zyskujesz pewność, że prace zostaną wykonane profesjonalnie i terminowo. To rozwiązanie wygodne, bezpieczne i w pełni dopasowane do Twoich potrzeb.
.png)